活化料斗
作者:亿普工业科技(常州)有限公司浏览人数:494次 更新时间:2024年07月12日


选择活化料斗主要有两种不同的标准。
1-连续排料清空料仓
2-快速清空料仓(大流量)
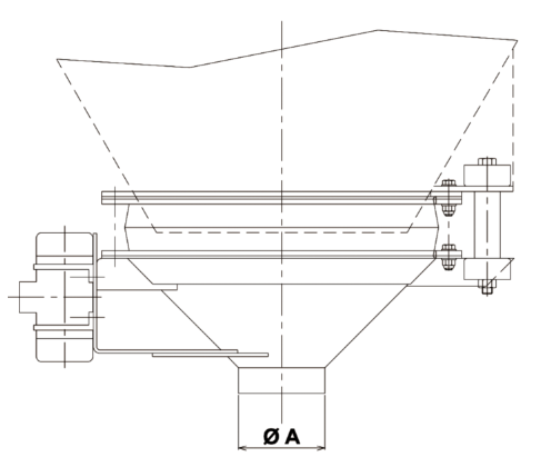
大流量可以通过采用直径约为料仓直径70%的活化料斗实现,料仓椎体部分的角度也必须在65°和70°之间。大流量设计是假设在卸料时任何物料流动速率相等的基础上的;然而,按经验,需要一定的灵活变通。选择最优的活化料斗直径的方法发生了变化,根据物料流动性的不同,活化料斗的直径发生了变化(增大)
物理种类参考


设备选型

上一篇:活化料斗结构图
下一篇:最后一篇
更多推荐





